令和08年3月14日 23時39分 更新
次回更新予定日:令和08年3月15日
有限会社フラーリシュハウス
お急ぎの方はこちらまでお電話ください
06-6357-9881
一般公開物件数:74件
会員限定物件数:42件
★★★トップページへ
>
■事業用物件一覧へ
> 物件情報
駅名別一覧
■間取一覧
■写真一覧
■地図一覧
■地域一覧
この他にも、貸主様等のご都合により、ホームページ上に記載できない物件が多数ございます。
希望条件登録をして頂ければ、ご紹介出来ます。
登録はこちらから ⇒
こちら
既に会員登録がお済の方はこちらから ⇒
クリック
詳細
物件番号
タイプ
写真画像
間取画像
駅名
住所1
賃料
管理費
面積m
2
面積(坪)
階/階建
保証金
敷金
礼金
画像
25009
事務所・倉庫
中津駅
大阪市北区本庄西3丁目
¥165,000
賃料に含む
55m
2
16.63坪
1階/3階建
なし
33万円
【マンション由本】
★1階部分15坪、路面
★本庄公園・グランドが徒歩1分
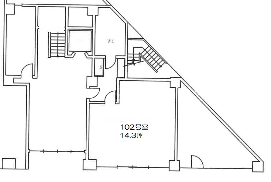
25317
貸店舗
中津駅
大阪市北区中津1丁目
¥314,600
賃料に含む
47.27m
2
14.29坪
1階〜1階/10階建
12ヶ月
なし
【若杉ビル】
★1階約14.3坪、路面、視認性良し、インターフレームダクト天井、シャッター付、飲食相談可(重飲食不可)
★美容室・エステ・ネイル・マッサージ・スクール・クリニック・物品販売店向き
★ひとくちメモ⇒この場所この広さでこの家賃は魅力♪スケルトン渡し内装はあなたの好みに♪人気物件ですのでお早目に〜!貸主様からご依頼頂き弊社直接募集…なのでお問い合わせは今すぐ!
21037
貸事務所
中津駅
大阪市北区本庄西2丁目
¥385,000
¥11,000
100.7m
2
30.46坪
1階/4階建
なし
2ヶ月
2ヶ月
【宏雅ビル】
★1階部分約30坪、路面!
★天井高3.35〜3.45m、日祝使用可、店舗事務所・倉庫使用も可
★ひとくちメモ⇒営業拠点に向いています
★★★トップページへ
>
■事業用物件一覧へ
> 物件情報
ページトップへ